


I denne case kan du læse om hvordan et par fra Hvidovre ønskede at få tilbygget et større fællesrum til deres eksisterende bolig.
Nogle gange mangler man bare de ekstra kvadratmeter som skal til for virkelig at samle hele familien. Måske er stuen for lille til at alle kan nyde eftermiddagskaffen i samme rum, eller måske er køkkenet for småt til at både nevøerne og niecerne kan sidde om spisebordet? Hvis alle sidder skulder til skulder, og både tante Lene og hendes partner er blevet placeret på to skamler for enden af det lille træbords højre hjørne, kan der være tale om reel pladsmangel. Så er det måske en god idé at udvide lidt – især i disse udfordrende tider, hvor den fysiske afstand er en så altafgørende og vigtig faktor i bådede sundhedsmæssige og sociale sammenhæng.
Et par i Hvidovre valgte at gøre netop dette, og degik efter at få udvidet deres bolig, ved at få tilbygget et fællesrum, så de for alvor kunne have et samlingssted for familien. De ønskede ligeledes at fællesrummet også skulle have forbindelse til haven, ved at komme i niveau med en udendørs terrasse.
Efter de købte vores ”3 x Designforslag”-pakkeløsning, udarbejdede vi tre skitser og plantegninger til det spændte par, så de med det samme kunne gå i gang med at realisere deres nybyggerdrømme. I denne artikel kan du se de tre forslag vi udarbejdede til dem.
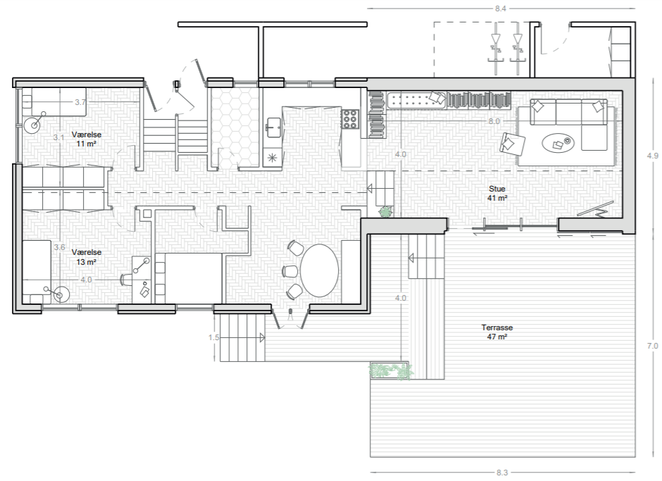
I dette designforslag er den tilbyggede stue blevet lavet i forlængelse af det eksisterende hus. Tilbygningen forbindes til huset via en halvmur i køkkenet, og stuen er blevet gjort en smule længere end i de andre forslag, for at skabe plads til en større terrasse.
Både tilbygningen og den oprindelige bolig er blevet pudset hvide, så der skabes en flot samhørighed mellem de to dele. Der lægges derudover tagpap på begge bygninger, for at skabe et flot, strømlinet og moderne udtryk.
Stuen forbindes til den store udendørs terrasse med skydedøre som sikrer en masse naturligt lysindfald. Der er, til disse skydedøre, derudover blevet lavet indbyggede solafskærmninger som kan rulles for ved behov, for at skabe en kølig og hyggelig atmosfære i de dage hvor stolen er for stærk.
Designforslag 1 opsummeret
I dette designforslag er det eksisterende hus og tilbygningen blevet adskilt via en niche med et indbygget reolsystem. Reolsystemet skaber en flot ramme om den nye indgang til stuen. Stuen er ligeledes blevet gjort kortere i forlængelsen af huset, men bredere ud mod terrassen, så den samme mængde kvadratmeter bevares.
Det er dette designforslag som kunden valgte at gå videre med, og som pt. er ved at få alle dets ”finishing touches” sat på af projektets tilknyttede arkitekt.
Det eksisterende hus er, som i det forrige forslag, blevet hvidpudset. I denne skitse er tilbygningen dog lavet i sort stålbeklædning, for at skabe en stilet kontrast til hovedbygningen. Den stærke kontrast giver helhedsbilledeet masser af kant og får samtidig den oprindelige bolig til at se større ud. Derudover er stålbeklædningen vedligeholdelsesfri, hvilket er meget praktisk i længden.
Terrassen forbinder de to bebyggelser og tilhørende blomsterkummer i stål er blevet sat ind for at skabe endnu mere sammenhæng imellem de to dele. Derudover giver de store blomsterkummer mulighed for at lave en grøn oase omkring boligen.
Designforslag 2 opsummeret:
Designforslag 3
Designforslag 3 præsenterer os for en tilbygning som er adskilt fra det eksisterende hus via en niche. Nichen skaber et hyggeligt hjørne i den nye stue, og kan for eksempel indrettes med en sofa, så den let og bekvemt kan omdannes til et lille læsehjørne.
Der er derudover blevet indtænkt centraltplacerede ovenlysvinduer i dette forslag, hvilket sikrer et flot og oplyst stuerum.
Tilbygningen er blevet pudset i en jordlig rød farve, hvilket skaber et unikt udtryk som giver huset masser af karakter.
”I dette forslag hvidpudses det eksisterende hus, og tilbygningen pudses rød. Dette skaber et sjovt, livligt og legende udtryk, som giver huset karakter.” – Arkitekten
De store glasdøre åbner op ud til haven og lader masser af naturligt lys falde ind i stuen. Der er derudover blevet lavet integrerede siddepladser på terrasen, hvilket sikrer en masse hygge og plads til både venner og familie, ved større havearrangementer.
Designforslag 3 opsummeret:
Føler du dig inspireret af dette byggeprojekt? Check endelig vores andre tidligere projekter ud, eller læs dig væk i vores omfangsrige vidensbibliotek.